The Hazelwood Model 

 

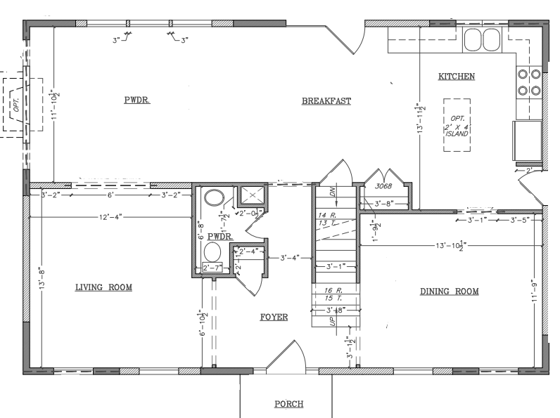
The Hazelwood model features an open floor plan highlighted by a two-story foyer and grand room. The kitchen is open to the two-story grand room and includes a convenient center island providing extra space for food preparation and storage. Sizable his and hers walk in closets, dual vanities, and bedroom crafted with a tray ceiling make up the master suite. Three additional 2nd floor bedrooms complete this Traditional style house plan.

Download Blueprint

 Floor Plan

First Floor Blueprint

Second Floor Blueprint

The Details

  • Single Family Home

  • Bedrooms: 4

  • Bathrooms: 2.5

  • Square Footage: Starts at 1,948*

    * Square Footage does not include the garage. All of our houses have a 2-car garage, which adds 400 sq. ft.

  • Stainless Steel Appliances

  • Many Flooring Options: Carpet, Tile, Vinyl, Hardwood

  • Granite Countertop

  • Wood Cabinets

  • 10-year Bond Builders Home Warranty

  • Option to Finish Basement

  • Washer Dryer Hookup

  • 2 Car Garage

Complete Hazelwood Example